Где достать материалы
Если вы решили сделать картинг своими руками, то в первую очередь необходимо определиться, какие материалы вам доступны. Если неподалеку есть авторазборка или пункт приема черного/цветного металла, то часть агрегатов можно приобрести там. На авторазборке вы сможете купить:
- кресло;
- педали;
- блок крепления педалей;
- полуоси;
- руль;
- рулевой вал;
- поворотные кулаки;
- рулевые тяги;
- шкворни;
- главный и рабочие цилиндры дисковых тормозов.
Все детали, кроме кресла, можно снимать со старых советских автомобилей. Кресло желательно снять с иномарки, оно будет более удобным. При выборе деталей проверяйте их состояние – шкворня и поворотные кулаки вращаются не заедая, тормозные цилиндры без протечек, остальные запчасти не ржавые.
В пункте приема черного или цветного металла вы сможете приобрести:
- подходящие шестерни;
- цепи;
- металлические трубы, уголки, полоски;
- колеса;
- мотор;
- подшипники.
Разработка схемы
Подобрав необходимые материалы, можно приступать к разработке схемы. Не существует общепринятой концепции формы или размеров картинга, поэтому каждый строит то, что ему больше нравится. В большинстве случаев решающим аргументом становится доступность тех или иных деталей. Существует правило – чем выше человек, тем длинней должен быть самодельный картинг, в противном случае высокому человеку будет очень неуютно в короткой машинке. Если вы купили автокресло вместе с салазками, которые обеспечивают его передвижение по салону, то сможете сделать длинный картинг с возможностью регулировки расстояния до педалей. Благодаря этому даже низкорослые люди не будут испытывать затруднений при управлении таким картингом.
За основу можно взять любой чертеж, выложенный в интернете, и подогнать его под свои материалы или агрегаты. Это проще, чем составлять чертеж с нуля, высчитывая прочность всей конструкции. При разработке схемы необходимо учитывать особенности крепления сиденья к раме, способы установки тормозных цилиндров и размеры шкворней. Также внимательно отнеситесь к способу крепления рулевых тяг к маятнику руля. На многих самодельных картингах рулевые тяги изготавливают из стального прутка диаметром 8–15 мм, а маятник из металлической пластины толщиной 5–7 мм. Такая схема не позволяет регулировать схождение колес, из-за чего велика вероятность быстрого износа покрышек. Можно с помощью сварки объединить их с наконечниками рулевых тяг от автомобилей, что позволит менять угол схождения колес, или самостоятельно сделать нечто похожее.
Статья в тему: Как правильно использовать толщиномер
Пошаговая инструкция для изготовления самодельного вездехода

- Создание основания конструктива вездехода. Желательно брать уже готовые рамы, например, со старой мототехники типа УРАЛ или ИЖ. Благодаря им будущий вездеход будет прочным и маневренным;
- После рамы переходим к заднему мосту. Стойка, покос и втулки руля собирают воедино две подвески – заднюю и переднюю;
- На этом этапе собирается колесная база вездехода. В качестве нее подойдет бывшая в употреблении запаска с грузовых машин. Если на них установить камеры низкого давления, вездеходу будет гарантирована отменная управляемость и маневренность. Об их пошаговом выполнении мы поговорим под конец статьи;
- Интеграция в сборную конструкцию двигателя, без которого мини вездеходы на колесах не смогут выполнять свою функцию;
- После инсталляции моторной системы самоделка дополняется трансмиссией, выхлопными элементами и тормозами, которые для снижения силовых и временных затрат могут быть взяты со старого автомобиля или мотоцикла.
Вслед за сборкой переходят к полевым испытаниям собранного своими руками агрегата, успешность которых – предпосылка к полнорценной эксплуатации.
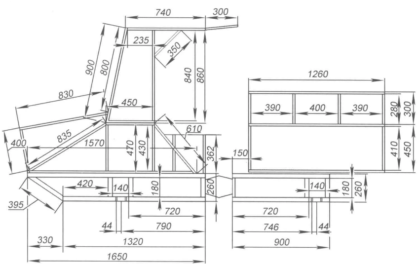
Стапель
Дальше нужно собрать стапель, на котором затем будет собираться рама картинга. Он необходим тогда, когда машина будет производиться не штучно, а хотя бы небольшой серией. В основании стапеля будет лежать алюминиевый лист размером 1 700 * 900 миллиметров и толщиной не менее 15 миллиметров. Вдоль длинной стороны проводят четкую линию – это след плоскости симметрии рамы. Линия, перпендикулярная длинной – это базовая точка для монтажа фиксаторов шкворневой втулки.
Отверстия втулки изготавливают на расточном станке. В результате получится нужная точность монтажа втулок при сварочных работах. На стапель также устанавливают уголки из стали, чтобы фиксировать продольные лонжероны. Раму собирают из двух продольных лонжеронов, поперечин в количестве трех штук, отбойника переднего и кронштейнов для монтажа рулевого механизма. Для деталей каркаса самодельного картинга рекомендуется применять трубу из 30ХГСА или трубы марки Ст20.
Как сделать каракат из мотоблока своими руками
Даже самый простой вариант караката способен развивать скорость до 70 км/час и без труда сможет пройти любое бездорожье и выдержать все возложенные на него нагрузки. Все эти функции он сможет выполнять за счет крепкой подвески, которую с легкостью можно изготовить из стальных труб, соединенных шарнирами и сваркой.
Никаких дорогих материалов не нужно, чтобы изготовить такой агрегат. Остается только слегка подстроиться под манеру управления данным транспортным средством.
Рассмотрим, как сделать каракат из мотоблока своими руками. В процессе создания караката можно выделить следующие этапы:
- Изготовление рамы — желательно использовать мотоблок средней или высокой тяжести (использование мотоблока Нева — оптимальный вариант для изготовления такой техники), с применением такого получится хорошего качества вездеход с тремя или четырьмя колесами. Некоторые конструкторы в качестве рамы используют запчасти от мотоцикла Урал или ИЖ.
- Создание подвески и заднего моста — конструкция подвески состоит из двух частей, соединенных между собой шарнирами. По желанию разработчика можно сконструировать переднюю и заднюю подвеску, обеспечив их высокую независимость.
- Производство и установка колес — самая дорогостоящая и долгособираемая часть караката.
- Большинство умельцев не покупают готовые диски, а используют самоделки, представляющие собой покрышки и камеры низкого давления (предпочтительнее использовать данные изделия с грузовых автомобилей: Урал, КамАЗ или с их прицепов).
- Монтаж двигателя и систем (тормозной, сцепления, вывода продуктов сгоревшего топлива).
Перед сборкой караката, необходимо составить примерный чертеж предполагаемой конструкции. Примеры схем представлены на фото ниже. Сконструировать объемную модель караката можно в различных 3-D пакетах, например, программа «КОМПАС-3D v18».

Перед полноценным его использованием на бездорожье следует испытать изготовленный аппарат. В процессе испытания могут проявиться какие-то недочеты в конструкции, а также можно будет оценить качество управления и комфорт езды.
Рекомендации по черчению
Предпочтительнее делать чертежи рамы в ее натуральном размере на листах миллиметровой бумаги. Для удобства работы с таким схематическим изображением, его после отрисовки наклеивают на плотный картон. Чертеж в будущем будет служить образцом, по которому будут подгоняться прочие элементы конструкции. Раму рисуют обязательно в двух проекциях – это боковой вид и вид сверху. Отдельно изображают передний лонжерон. Точных размеров рамы картинга не существует, а это значит, что изготовить такой картинг можно не только под ребенка, а различные детали конструкции подгоняются уже по месту.
Проектирование

- Первым шагом к созданию собственного картинга является его проектирование. Картинг может иметь самые разнообразные формы и размеры. Вы можете придумать абсолютно любой дизайн. Главное, помните, что основу картинга составляют: рулевая/тормозная система, шасси и двигатель. Нарисуйте подробную схему своего будущего автомобиля. Только используя план-схему, вы сможете правильно собрать картинг своими руками. Подходите к процессу проектирования творчески. Чтобы вдохновиться, вы можете воспользоваться интернетом, который предоставит вам множество разнообразных моделей самодельных картингов. Пообщайтесь со знакомыми механиками. Можно заказать платную разработку чертежа, а можно воспользоваться шаблоном, внеся в него свои изменения;
будьте крайне внимательны, указывая габариты картинга. Размеры должны соответствовать росту и возрасту водителя. Так, для подростка достаточно ширины 0,76 метра и длины 1,3 метра. Картинг для взрослого должен иметь ширину 1 метр и длину 1,8 метра. Продольное расстояние между осями самодельного картинга должно составлять от 101 до 122 сантиметров при длине 132 см. Проект картинга должен быть максимально точным. Иначе в процессе подбора материалов будет трудно правильно определиться с их количеством;

материалы для самодельного картинга можно купить в специализированных магазинах, но если вы ограничены в средствах, то подобрать все необходимые детали можно на свалках, барахолках или обратиться в ремонтную мастерскую, где производят ремонт газонокосилок и подобного оборудования.
Ниже представлен перечень необходимых материалов для того, чтобы сделать картинг своими руками.
- Рулевая/тормозная система:
- коробка передач;
- ручник;
- руль;
- колеса;
- рулевой и приводной валы;
- педали газа и тормоза;
- подшипники.
- Двигатель:
- движок (можно использовать двигатель от бензопилы или газонокосилки-триммера);
- цепь;
- топливный бак;
- болты и шайбы.
- Шасси:
- 2,5-сантиметровая квадратная труба, длиною 9,2 метра;
- стальная труба диаметром 2 см, длиною 1,8 метра;
- труба диаметром 1,5 см, длиною 1,8 метра;
- пластина из стали по размерам чуть больше двигателя и толщиной 0,5 см;
- металл или фанера для днища и сидения;
- само сидение.
Чтобы сделать картинг своими руками вам понадобится сварочный аппарат. Шасси является основой картинга. Они удерживают вас во время поездки, в них же находится двигатель. Если вы никогда не занимались сварочными работами, то лучше воспользоваться услугами профессионала, потому как сваренные непрофессионалом детали могут только казаться прочными, а на практики иметь микротрещины и щели, в результате чего, ваш картинг может стать смертельно опасным транспортом. Если шасси будут состоять из нескольких деталей, то сварку необходимо проводить при высокой температуре и глубокой степени проникновения, сварочные швы должны быть максимально аккуратными. Если вы решили произвести сварочные работы самостоятельно, то лучше потренироваться на сварке небольших изделий и только получив хороший опыт начинать сварку картинга.

Одним из вариантов сборки самодельного картинга является приобретение готовых деталей. Так, если вам не хочется мучиться с самостоятельным созданием деталей и последующей их сваркой, то можно приобрести готовый конструктор, который легко можно собрать по схеме с помощью простых инструментов и без производства сварочных работ. Примерная стоимость такого конструктора для самодельного картинга составляет 550 долларов.

Видео
В этом видео подробно рассказывается, как сделать картинг своими руками. Видео имеет много положительных отзывов и комментариев.
Дальше серия видео уроков — самодельный картинг. В этом видео — как сделать раму на картинг.
Продолжение. Покупка двигателя на картинг.
Продолжение. Как сделать рулевую на картинге.
Продолжение. Испытание самодельного картинга.
Последние комментарии
Сегодня огромное количество детей и даже взрослых увлечено картингом. Эти юркие быстрые машинки позволяют получить навыки вождения, а также почувствовать прилив адреналина во время стремительных поездок по картодрому. Но многие любители не могут или просто не хотят покупать картинг, они хотят собрать его сами.

С чего начать
Перед началом работы необходимо приобрести нужные материалы и агрегаты, которые затруднительно изготовить самостоятельно. Для этого существуют специальные наборы, в которые входят колеса, детали ходовой и рулевой части и другие мелкие узлы. Понадобятся трубы, из которых будет изготавливаться рама и тонколистовой металл. Из инструментов потребуется набор ключей, отверток, трубогиб, молоток, плоскогубцы и т.д. Обязательно понадобится сварочный аппарат и услуги специалиста-сварщика.
Делаем макет
На следующем этапе по чертежу делается макет рамы картинга на картоне. По макету отрезаются трубы заданной длины, которые скрепляются сварочными швами, при необходимости их можно подгибать при помощи трубогиба. На получившийся каркас нужно крепить узлы силовой, рулевой и ходовой части.
Для начала работы к днищу карта привариваются 2 трубки П-образной формы, которые нужно усилить поперечными стяжками. Каждая стяжка одним концом крепится к раме, а другим – к соответствующим трубкам, предназначенным для крепления агрегатов. Это придаст всей конструкции необходимую жесткость. На раму привариваются кронштейны для крепления двигателя, расположение которых зависит от марки двигателя, выбранного для картинга. Для монтажа используются специальные двигатели, например, Rotax.
ВЫРЕЗАНИЕ
Ну вот осталось вырезать изготовленные карты таро и дело сделано. Для вырезания можно использовать ножницы или канцелярский нож с линейкой.
Это интересно: Файлы для распечатки карт Таро

Ножом получается быстрее и ровнее, но нужно действовать внимательно и осторожно, чтобы обошлось без травм. Не лишним при резке канцелярским ножом подложить оргстекло, фанеру или еще какой материал, чтобы не повредить стол (или на чем там резать будите)
Еще один момент при вырезании – это скруглённые углы. Делать их или нет каждый решает сам.
По данному методу, на момент написания статьи, уже были сделаны несколько колод таро. А именно Таро Гномов, Таро Теней, Таро Манара и Кощюны правду глаголящие.

Пример готовых карт
Изготовление мотоблока

Приступаем к изготовлению мотоблока:
- Собираем раму: используем сварочный аппарат, целесообразно использовать цельный металл. Делаем конструкцию жесткой. Конструкция рамы состоит из двух лонжеронов, задние концы требуется изогнуть кверху, а передние скрепить сваркой. К задней части присоединяем блок управления с рычагами. Между собой лонжероны соединяем поперечными планками. Передняя планка будет играть роль подставки для трансмиссии и аккумуляторной батареи.
- Место крепления мотора изготавливается в виде салазок, к боковым сторонам привариваются скобы, а к центру водопроводная труба диаметром 42 мм. К середине образовавшихся салазок крепится поперечная дуга, которая имеет отверстия для крепления двигателя и основания рамы. В передней поперечине рамы делается место для установки цепи натяжения, обеспечивающей работу редуктора.
- Установка редуктора – важный элемент изготовления самодельного мотоблока. Редуктор выполняет преобразование энергии крутящего момента в более низкие скорости. Обычно редуктор устанавливается между двигателем и колесами. Существуют варианты самодельных мотоблоков, когда редуктор может быть использован не только для движения мотоблока, но и для работы бура, фрезы, пневмохода-самоделки и т.п.
- Оснащаем двигатель воздушным охлаждением, используем электродвигатель, рассчитанный на 12 вольт.
- Ставим колеса, не превышающие 10 дюймов. Шлицевые нарезки полуосей передают крутящий момент колесам. Чтобы улучшить сцепление колес с грунтом, можно установить специальный бандаж, изготовленный из проволоки или цепей – т.е. делаем грунтозацепы своими руками.
- Устанавливаем выхлопную систему, которая остается без изменений. Несмотря на то, что существует возможность установки снятой с мотоцикла выхлопной, можно сделать выхлопную собственными руками. Потребуется труба, из которой будет сделан патрубок, и банки–глушители. Переходник между патрубком и глушителем должен изготовит токарь, самостоятельно сделать этот узел крепления невозможно.
- Подготавливаем место для топливного бака, который можно сделать собственноручно: подойдет любая пластиковая канистра, емкостью не менее 5 литров. В канистре проделывается отверстие и выводится специальный шланг, по которому будет транспортироваться горючее.
- Соединяем агрегаты и узлы между собой и запускаем мотоблок.
Пользуясь всеми вышеописанными советами можно самостоятельно собрать мотоблок за довольно короткое время, используя только подручные материалы и затратив незначительное количество денежных средств.
Колёса и сидения
Теперь переходим к изготовлению колёс и сидений. Их тоже готовим из листового металла. В частности, диски колёс можно изготовить на токарном станке из полуторамиллиметрового куска стального листа. Крепим диски к ступицам путём приваривания их головок. Не забываем заварить оба поворотных узла переднего моста. Потом их нужно будет зафиксировать с проушинами при помощи шкворней.
Особо отмечаем процесс крепежа левого и правого поворотного узла к балке переднего моста. Нужно учитывать, что развал передних колёс, а точнее, его угол должен быть равен нулю, а угол наклона шкворней — 12 градусам. Таким образом, координированность и взаимосвязанность узлов и механизмов карта становится правильной, а эти параметры, как известно, зависят от развала колёс и других важных расчётов.
Пришла пора ставить двигатель. Его нужно будет закрепить на точках опоры рамы и затянуть болты с усилием, равным значению, указанному в прилагаемых чертежах. Идём дальше и подключаем остальное оборудование навесного типа, куда входит карбюратор и другие важные детали.
Мотоблок: устройство
Тематический агрегат представляет собой колесное шасси, на котором размещен двигатель мощностью до 14 л.с. Мотор питается дизелем или бензином, чтобы задавать ход шасси через редуктор.

В результате пользователь мотоблока без усилий толкает технику вперед, держа ее за ручки. На последних размещены клавиши пуска и скоростного режима.

Ходовая мотоблока представлена двумя колесными осями с толстыми покрышками. Зимой покрышки лучше оснащать цепями, чтобы агрегат не скользил по снегу и гололеду.

А вот для лучшей проходимости по влажному грунту оси с шинами рекомендуется заменять металлическим грунтозацепами.

Альтернативный вариант – гусеничный тракт. Но тогда возникает вопрос: «как сделать гусеницы на мотоблок своими руками и какие материалы и средства для этого применять?».

Для изготовления тематических гусениц энтузиасты используют:
- Транспортерную ленту и звенья, разрезанные из профильной трубы;
- Разрезную покрышку от автомобиля и другой транспортной техники.
Источник
Самодельный квадроцикл с двигателем от ОКИ| 85 фото пошаговой сборки
Уважаемые посетители сайта «Самоделкин друг» сегодня мы с вами рассмотрим пошаговую инструкцию о том как самостоятельно собрать квадроцикл с двигателем от автомобиля ОКА своими руками. Автор и конструктор представленного квадроцикла Алексей Бразгин. По словам Алексея он давно мечтал собрать свой собственный квадроцикл, перед началом строительства машины просмотрел множество форумов, сайтов самоделкиных, от чего был приятно удивлен… богата Русь-Матушка Кулибинами)) смотрите раздел КВАДРОЦИКЛЫ И приступил к проектировке, сбору необходимых запчастей, узлов и агрегатов. В основном все детали взяты с отслуживших свой срок Отечественных автомобилей, так к примеру двигатель ОКА, элементы подвески ВАЗ, сателиты НИВА-214, гранаты ВАЗ-2109. Рама сварена из профтрубы с сечениями: 20х40, 20х25 и трубы на 20 для изготовления рычагов подвески. Шаровая от классики, пружины ОКА, сайлентблоки тоже классика 24 штуки. Приводные валы от ВАЗ 2109, электропроводка от скутера, диски R-15, резина «Форвард-сафари 540». Топливный бак так же самодельный сваренный Алексеем из листовой нержавеющей стали, вместимость бака 18 л. Кенгурятники передний и задний так же самодельные сварены из трубы.
Данный квадроцикл довольно мощный и с легкостью преодолевает любые преграды бездорожья, ямы, рвы, канавы с водой и без, крутые подъемы и спуски, глубокий и рыхлый снег, все этому зверю непочем)
Чтож, давайте перейдем к рассмотрению пошаговых фото сборки квадроцикла Алексея Бразгина.
Материалы
- двигатель ОКА
- элементы подвески ВАЗ
- проф труба 20х40 и 20х25
- труба 20 мм
- пружины ОКА
- амортизаторы классика
- диски R-15
- резина «Форвард-сафари 540»
- стекловолокно и эпоксидная смола
Инструменты
- сварочный инвертор
- УШМ (болгарка)
- дрель
- набор гаечных ключей
- краскопульт
- рулетка
- отвертка
Пошаговая инструкция по сборке квадроцикла с двигателем от автомобиля ОКА своими руками.


Первый квадроцикл

Второй квадроцикл.

Имея наглядный пример намного проще создавать свою собственную технику, но на пути Алексея стояла непростая задача и более полугода кропотливой работы.
Все началось со сбора запчастей и прочего металлолома от Отечественного автопрома)
Двигатель ОКА.

Редуктор с гранатами от ВАЗ 2109

Рассмотрите сверху)

Сателит от НИВЫ 214 расточенный токарем под девятошную гранату.

Сателит на гранате.

Рама сварена из профтрубы 20х40 и 20х25, рычаги подвески из трубы 20 мм.

Перед.

Шаровые от классики.

Низ от ВАЗ 2109.

Сайлентблоки от классики 24 шт.

Переделка девятошных кулаков и совмещение их с классикой.

Передние амортизаторы созданы путем скрещивания пружин ОКИ с ее задними амортизаторами, вот что получилось.

Нижнее крепление.

Задние пружины от ОКИ+амортизаторы классика.

Рулевое управление. Радиатор вынесен на раму.

Рама предварительно варилась прихватами, чтоб в процессе можно было исправлять допущенные ошибки в конструкции.

Крепление руля.

Укороченные приводные валы ВАЗ 2109. Задние привода.

Передние привода.

Переделка системы выпуска выхлопных газов.

Резонатор от ВАЗ 2109 был вскрыт и вварена перегородка.

Установка радиатора и системы охлаждения двигателя.

Рычаг КПП.

Крепление в нижней части.

Передача крутящего момента от КПП к редукторам.

Вид со стороны КПП.

Родная граната от ОКИ, привод тоже от нее.

Топливный бак сварен из нержавеющей стали, вместимость 18 л.

Горловина бака.

Диски R-15.

Алексей в процессе строительства.

Резина «Форвард-сафари 540»

Облицовка, начало)

Кенгурятник.

Передний кенгурятник.

Основа для нанесения стеклоткани и пропитки эпоксидной смолой.

Самодельное сидение.

Первый пробный выезд на квадроцикле.

Покатухи на квадрах с ребятами)

Грунтовка рамы.

Грунт на редуктор.

Рама окрашена в черный цвет.

Редуктор в синий.

Работа с стеклотканью очень трудоемкая и кропотливая.
Сборка карта
Из профильной трубы 50х50 мм делается рама карта. Ее размер высчитывается в зависимости от роста ездока. Рама должна быть П-образной. Причем ее задняя перемычка делается под ширину имеющейся тяговой оси с учетом установленных колес. Детали рамы стягиваются с помощью болтов и монтажных пластин, вырезанной из толстой стальной плиты.

В задней части рамы у перекладины сверлятся сквозные отверстия для установки через них тяговой оси с уже прикрученной к ней звездочкой и тормозным диском. Сама ось крепится к раме через подшипники с фланцами, прикрученными к профильной трубе болтами. Сразу же на нее ставятся и колеса.
Для изготовления переднего моста карта берется профильная труба 50х50 мм. В местах ее пересечения с рамой срезаются 3 стенки. Это позволит состыковать мост с рамой
Важно делать срез внизу шириной 50 мм, а к верху с уклоном в сторону колес на несколько градусов. Затем рама и мост стягиваются между собой болтами и угольником из листовой стали
При этом выступающая за раму часть моста подгибается вверх, за счет получившегося зазора от среза с уклоном.

Затем края моста нужно подрезать на передней стенке и загнуть ее в сторону рамы. После этого кронштейны передних колес прикрепляются к мосту через скобы из пластин.

Карт уже стоит на колесах, но его передний мост еще болтается. Поэтому нужно вырезать 2 пластины и прикрутить их сверху над пересечением с рамой. Перед этим пластины придется подогнуть. Благодаря такому способу крепления центр тяжести передка карта будет опущен вниз, что даст в будущем устойчивость на поворотах. Загиб же краев передней стенки моста позволяет колесам нормально поворачивать на весь радиус.
Далее на раму устанавливается двигатель. Под него делается крепление из уголка, тонкой профильной трубы и полосы. Ему достаточно 2 точки опоры. Он выставляется так, чтобы можно было накинуть приводную цепь на звездочку на оси.
Перед двигателем к раме прикрепляется сидение. Его можно поставить на перекладины из уголка или профильной трубы.

По центру переднего моста прикручивается рулевая колонка на крепление из 2-х обрезков уголка. Затем из 3-х кусков полосы для нее изготовляется верхний упор. Из них одна прикрепляется к мосту и две по бокам к раме. Завершающим этапом сборки системы управления является установка и настройка рулевых тяг.
Далее нужно сделать защитную раму для двигателя. Для этого используется профильная труба 20х20 мм. Сначала делается П-образная стойка между сиденьем и мотором, затем она усиливается косыми перемычками. Часть между защитной рамой и сидением обшивается фанерой. К фанерной стенке прикручивается кронштейн для крепления бензобака.
На следующем этапе сборки нужно установить глушитель, подключить бак и разобраться с электропроводкой. Затем на тормозной диск устанавливается гидроцилиндр, педаль для него выводится под левую ногу.

Из стальной полосы делается тяга, которая набрасывается отверстием на ножной рычаг коробки передач. Чтобы она не слетала, ее следует поджать штатной резинкой рычага. Тяга соединяется в районе начала сидения со вторым рычагом из такой же полосы. Она крепится к нему немного ниже его центра, сам рычаг присоединяется внизу к раме. Сверху его нужно оснастить набалдашником, в его качестве можно использовать просто трубку.

Трос сцепления выводится от двигателя к переднему мосту, где присоединяется к педали, закрепленной под правой ногой. Саму педаль обязательно нужно оснастить ограничителем, чтобы ее нельзя было нажать больше допустимого хода тросика.
Завершающим этапом сборки является установка днища. Оно вырезается из влагостойкой фанеры и прикручивается к раме снизу. После этого делается крепление под аккумулятор, и карт готов.

В результате получается отличный развлекательный мини болид, к сожалению, с непривычным на первых порах управлением. Но покатавшись на нем несколько кругов, дальнейшее переключение передач уже будет происходить на автоматизме, а также пропадет путаница с педалями. Используя этот принцип можно сделать карт на двигателе с вариатором от скутера. Это будет еще проще, учитывая, что понадобиться вывести только педаль газа и тормоза.
Делаем мотовелосипед своими руками
Итак, как из бензопилы сделать мопед своими руками? Для этого не нужно обладать высшим техническим образованием и иметь под рукой передвижную мастерскую – достаточно необходимого минимума инструментов, рабочего мотора от бензопилы практически любой марки и рамы от велосипеда, желательно сделанной из металлических трубок, чтобы выдержать нагрузку от двигателя.
Подбор мотора

Ничего сложного в том, как сделать велосипед с мотором от бензопилы, нет. Но нужно понимать, что от легкой бензопилы, что используется для мелких работ, мотор не подойдет – его мощность должна быть не менее 2 л.с. или 1.5 кВт. А вот что касается объема, тот здесь ситуация прямо противоположная – объем не должен превышать 50 см3, в противном случае это нарушит положение Венской конвенции. А так для такого транспортного средства не нужны права и регистрация, так как это средство определяется как «велосипед с подвесным двигателем».
Оборудование рамы
Самодельный мопед из бензопилы делается из велосипеда в любом, даже в самом «убитом» состоянии – главное, чтобы была целая рама. Устанавливается двигатель от бензопилы на велосипед на стык нижней и подседельной трубы – это оптимальный способ расположения. Рядом с ним прикручивается бачок для бензина, а над двигателем, на верхней трубе, устанавливается аккумулятор. Установить двигатель от бензопилы нужно так, чтобы он был закреплен прочно и надежно – мотор подвержен вибрации и если его слабо закрепить, он упадет.
Если нет рамы от готового велосипеда, ее можно запросто сварить – для этого нужно несколько труб и сварочный аппарат. Так даже лучше – такой мотовелосипед из бензопилы своими руками будет более прочным и надежным, а самостоятельно сваренная рама позволит расположить мотор как можно ближе к ведущему колесу.
Трансмиссия
Просто мотор от бензопилы поставить на велосипед мало – нужно сделать так, чтобы крутящий момент от мотора передавался на колеса. Для этого используются шкивы или цепной механизм:

- Система шкивов. В данном варианте двигатель от бензопилы на велосипеде будет передавать крутящий момент через ремень. Такая система проще – в ней используются заводские или самодельные шкивы, один на вал двигателя, второй на втулку заднего колеса, а также натяжной ремень. Минус – ремень растягивается быстрее цепи и менее долговечен, хотя клиновидные ремни не уступают цепям в долговечности.
- Цепная передача. Здесь можно использовать заднюю звездочку, а на вал двигателя установить шестерню. Передача момента происходит через цепь – она более долговечна и устойчива к нагрузкам, но требует регулярного ухода. Выбирайте сами, как сделать велосипед с мотором от бензопилы, точнее, какую трансмиссию на него устанавливать.
Подключение двигателя
Мотосамокат из бензопилы своими руками не поедет, если двигатель не подключить правильным образом. Для этого необходимо подключить аккумулятор к блоку зажигания двигателя, а также к тормозной ручке. Соединительный тросик выставляйте так, чтобы он мог легко заводиться с помощью ручки. Последним шагом будет установка выхлопной трубы – ее можно и не ставить, но в этом случае самокат из бензопилы будет «радовать» выхлопом прямо в лицо.
Как видно, ничего сложного в том, как на велосипед поставить двигатель от бензопилы, нет – здесь нужно приложить лишь немного усилий и иметь необходимый минимум запасных частей и агрегатов. Но такой самоходный механизм будет ехать чуть быстрее обычного велосипеда. А вот самодельные картинги из бензопилы – это совсем другой уровень. При правильном подходе можно устраивать настоящие гонки, поэтому рассмотрим ниже, как сделать картинг из бензопилы своими руками.
Целесообразность самоделок
Несмотря на то что на рынке представлено большее разнообразие навесного оборудования, оно не всегда может подходить под те или иные задачи. Да и соотношение цена — качество порой оставляет желать лучшего. Поэтому многие садоводы-огородники изготавливают необходимые им приспособления для мотоблоков своими руками. Для этого достаточно иметь под рукой дрель, болгарку и сварочный аппарат, а также владеть навыками работы с ними.
Только в отдельных случаях, когда необходимы более точные расчеты и токарные работы, приходится обращаться к узкопрофильным специалистам.
Мини-бульдозер
Превратить мотоблок в миниатюрный бульдозер, способный разравнивать небольшие площадки или убирать снег и мусор можно, установив на него отвал-лопату. Для этого используют листовой металл толщиной не менее 3 мм. Нижнюю часть лопаты следует немного загнуть вперед по отношению к общей плоскости, закрепить на ней полоску из плотной резины для уборки снега или обшить жестью (для земляных работ). Для укрепления всей конструкции сзади необходимо приварить несколько ребер жесткости из металлического уголка.
Самоходные грабли
Несмотря на наличие заводских грабель, многие фермеры предпочитают изготавливать их самим с учетом особенностей своего хозяйства: размеров луга, рельефа.

В качестве материалов для грабель используют металлические трубы и каленые прутья. Но как вариант, можно использовать заводские ручные вилы, приварив их к основе. Для удобства работы желательно по краям установить небольшие колеса или лапы-лыжи, которые будут снимать нагрузку на всю конструкцию.
Почему бензин портится в баке, и как долго его можно там «хранить»? Ответ сотрудника НПЗ
Многие водители замечали, что со временем характеристики топлива, находящегося в баке, ухудшаются. Почувствовать это можно без проведения анализов — автомобиль хуже «едет», а двигатель начинает работать шумнее. В обычное время такая ситуация встречается редко, так как автолюбители успевают выкатать топливо достаточно быстро. Но сейчас у многих водителей машины стоят без дела, поэтому я решил осветить тему «срока годности» бензина.

В Сети можно найти массу мнений по поводу современного топлива.
Оказалось, что бензин действительно имеет определённый срок годности, который зависит от множества факторов. Этилированный бензин, хорошо известный опытным водителям, мог храниться долгие годы . Официально срок его годности составлял 5 лет, но на практике топливо не теряло своих свойств десятилетиями. Сейчас ситуация изменилась, этилированный бензин запретили. Именно поэтому горючее стало храниться меньше .
В соответствии с актуальным ГОСТом срок годности бензина марки АИ-92 должен составлять не менее года
Важно понимать, что зачастую достигается это только при подходящих условиях хранения. В топливном баке создать такие условия невозможно, поэтому на практике срок годности топлива ниже
Почему же, казалось бы, непортящийся продукт хранится всего год?
Важную роль в срок годности бензина играет контакт с кислородом . На нефтехранилищах он минимизирован. То же самое наблюдается при хранении бензина в полной канистре с герметичной крышкой. Топливный бак автомобиля предусматривает систему вентиляции , поэтому контакт с кислородом не ограничен.
Влияние оказывает и пакет присадок, использующийся при производстве топлива. Даже в бензине марки АИ-92 добавок достаточно много. Некоторые присадки отличаются летучестью, другие, наоборот, выпадают в осадок . Это влечёт за собой снижение топливом октанового числа и, следовательно, ухудшение динамики автомобиля. Производители бензина используют разные пакеты присадок. Именно поэтому топливо с одной АЗС может храниться в баке без проблем месяцами, а другое «портится» уже через одну-две недели .
Если у Вас возникли описанные выше проблемы, то рекомендуется заправляться небольшими порциями или попробовать сменить АЗС. По своему опыту могу сказать, что буквально за три месяца бензин может сильно потерять в качестве . Однажды в начале зимы я оставил неполную канистру бензина для мотоблока на даче, а весной не смог запустить двигатель. Топливо даже не загоралось от спички.






























